Резервуары и металлоконструкции
от завода-производителя

Доставка по всей России!

slide-s02

Сосуд для хранения СУГ 8 м3

Сосуд для хранения СУГ 8 м3 может эксплуатироваться в системах хранения и обработки сжиженных углеводородов, когда объемы хранимого вещества не должны быть большими. Завод резервуаров и негабаритных металлоконструкций (РиНМ) предлагает высококачественные емкости, изготавливаемые по отечественным и зарубежным нормам из собственных материалов. Поставщик предлагает проектирование резервуаров по необходимостям заказчика, изготовление стандартизированного оборудования, а также помощь в доставке, монтаже и внедрении.

 

Сфера применения

 

Занимаясь производством ответственных емкостей, работающих с особыми веществами, поставщик ориентируется на нормы ГОСТ Р 54982-2012 и ГОСТ 5172-63. Если заказчиком выступает зарубежный партнер, принимаются во внимание нормы международного регламента. Сжиженные углеводородные газы могут эксплуатироваться в различных отраслях. Особенностью данного резервуара является сравнительно небольшой объем – не более 8000 литров. Подобные необходимости используются в следующих направлениях:

  • хранилища в нефтегазовой отрасли;
  • узлы сглаживающие пиковые потребления углеводородов;
  • портовые и перевалочные базы хранения, терминалы (морские, железнодорожные);
  • резервные наполнители для бытового и промышленного обслуживания;
  • заправочные станции.

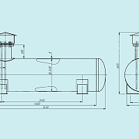
Основными параметрами емкости (газгольдера) можно назвать его форму, как правило, это цилиндрический резервуар наземного или подземного расположения. Днища используются плоские, либо сферические, приварные. Содержимое хранится при определенных показателях давления (не менее 1,6 МПа, при обычных температурах, а также не более 0,07 МПа, при низких температурных показателях). В зависимости от специфики применения емкость может устанавливаться вертикально или горизонтально, снабжаться соответствующей арматурой, подключаемой через штуцера (слив, дренаж, подача, контроль).

 

Компетентный персонал поможет рассчитать необходимые объемы резервуара, спроектировать конструкцию и внедрить ее в готовую схему работы, либо установить, как самостоятельный узел хранения и обработки. Подбирается материал (сталь), оснащение (для обслуживания, установки), а также разрабатывается наиболее целесообразный проект под конкретные нужды потребителя. Гарантия качества и быстрота исполнения.

 

Характеристики

 

На сегодняшний день разработан проект сосуда доля хранения углеводородов объемом не более 8 м3, относительно которого заказчик может определяться по своим нуждам. Основными характеристиками подобной конструкции можно назвать следующее:

 

Параметр

Значение

Длина (мм)

с днищем

5450

цилиндрической части

4650

Высота (мм)

диаметр емкости

1400

полная, с люком

2635

Расстояние между опорами (мм)

3450

Толщина стенки (мм)

8

Давление (МПа)

тестовое

2,34

расчетное

1,8

рабочее

1,6

в штуцерах

2,5

Номинальная масса (кг)

2650

 

Давление на тестовых испытаниях специально подается намного выше номинального или рабочего, чтобы удостовериться в конструкционной цельности. Подача давления осуществляется на короткий промежуток времени, за который резервуар не может получить ощутимых механических повреждений и остается годным для эксплуатации.

 

Что касается штуцеров под разнообразные манипуляции с содержимым, их количество определяется под нужды непосредственного использования, однако существует обязательный стандарт:

  • штуцера (два) для отбора жидкой и газовой фазы (диаметром не более 20 мм);
  • штуцер наполнения (32 мм);
  • для уровнемера и предохранительного клапана (каждый не менее 32 мм).

Емкость обеспечивается контрольно-измерительной аппаратурой, которая отслеживает состояние хранимого и позволяет вовремя среагировать персоналу на изменения. Стоит обратить внимание на то, что при номинальном наполнении в 8 м3, газгольдер рекомендуется использовать для хранения сжиженного углеводорода в объеме не более 6,8 м3. Это позволяет соблюсти технологические нормы и безопасность хранения и обработки газовой среды.

 

Нюансы изготовления

 

Для качественных емкостей, используемых в ответственных процессах, поставщик отбирает только проверенные материалы. Так наибольшим спросом пользуются стали марки 09Г2С, 10Г2С1 или 16ГС. Подобный материал зарекомендовал себя устойчивым в работе со средами малой агрессивности, а также с хорошими показателями по устойчивости к воздействию коррозии. Для больших гарантий поставщик покрывает поверхность резервуаров специальными составами, как снаружи, так и внутри.

 

Если резервуар будет использован в качестве наземного хранилища, при проектировании учитываются ветровые нагрузки и сейсмическая активность района эксплуатации. Газгольдер размещается на опорах (не менее двух), снабжается лестницей доступа и площадкой обслуживания. Для использования в районах с пониженными температурами могут быть изготовлены двухстенные резервуары, пространство между стенок у которых заполняется специальным подконтрольным составом, помогающим поддерживать нормализованное состояние СУГ.

 

При подземном размещении газгольдера требуется внимание к месту размещения (состояние почвы и грунта). Подготавливается специальный котлован, дно которого «устилается» песчаной «подушкой», заливаемой бетонными составами. В расчет берется сейсмическая активность района эксплуатации (не более семи баллов), а также постоянные снеговые нагрузки на поверхность.

 

Доставка

 

Завод РиНМ предлагает не только высококачественное оборудование для специализированных целей использования. Предоставляется помощь в доставке, монтажных работах и внедрении в системы любой сложности. Когда требуется сосуд для хранения СУГ 8 м3, лучше всего обращаться к проверенным поставщикам.

Преимущества

  • Цены от производителя

  • Гарантия качества

  • Комплектация объектов под ключ

  • Производим монтаж/демонтаж

  • Оперативная доставка в любой регион

  • Быстрые сроки поставки,
    четкое соблюдение сроков

  • Персональный подход

  • Гарантийное обслуживание

  • Разработка КМД от 2-х
    рабочих дней

  • Составление КП от 15 минут

Подготовим коммерческое предложение
с учетом ваших индивидуальных технических требований

Скачать опросный лист

Чертеж

Чертеж Сосуд для хранения СУГ 8 м3

Доставка

Чтобы избавить Вас от необходимости поиска логистической компании, мы готовы взять на себя работу по осуществлению доставки оборудования на Ваш объект.

Преимущества осуществления доставки при помощи нашей компании:

  • Работа только с проверенными временем подрядчиками
  • Четкое соблюдение сроков
  • Разумные цены
  • При необходимости, груз можно застраховать
  • Стоимость услуги рассчитывается индивидуально, в зависимости от региона доставки и объема груза.

Свяжитесь с нашим менеджером по телефону или через форму сайта и мы подготовим для Вас расчет.

Скачать опросный лист